Lagerware (P) ** Löschautomatik

AL-KO POWER UNIT 300
Der Vielseitigkeits-Champion. Mit 6.000 m³/h Leistung und maximaler Flexibilität bei der Entsorgung: Wahlweise mit Spänesäcken, Zellenradschleuse oder direkt integrierter Brikettierpresse.
Max. Volumenstrom
6.000 m³/h
Entsorgung
5 Varianten

OPTI JET® Abreinigung
Hocheffiziente Filterabreinigung per Druckluftstoß. Garantiert konstante Saugleistung und lange Filterstandzeiten.

Servicefreundlich
Großzügige Revisionsöffnungen und ein durchdachtes Design machen Wartung und Inspektion zum Kinderspiel.


Technische Zeichnungen
Klicken Sie auf die Vorschaubilder, um die detaillierten Maße der verschiedenen Varianten (Standard / Brikettierung) zu sehen.
Daten: Standard & Zellenrad
| Typ | 300 P ** | 300 P-ZRS |
|---|---|---|
| Artikel-Nummer | 195 677 03 | 195 876 03 |
| Ansaugstutzen | 300 mm | 300 mm |
| Motornennleistung | 7,5 kW / 3 Ph | 7,5 kW / 3 Ph |
| Spannung | 400 V / 50 Hz | 400 V / 50 Hz |
| max. Volumenstrom | 6.000 m³/h | 6.000 m³/h |
| Nennvolumenstrom * | 5.089 m³/h | 5.089 m³/h |
| Unterdruck bei Vnenn. | 2.587 Pa | 2.587 Pa |
| Filterfläche | 30 m² | 30 m² |
| Löschautomatik | Integriert | Integriert |
| Spänesammelvolumen | 3 x 165 L / 3 x 250 L | Zellenradschleuse |
| Schalldruckpegel *** | 71 dB(A) | 71 dB(A) |
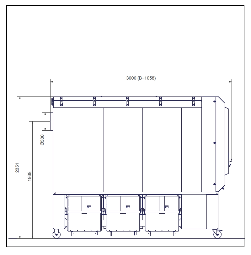
| Maße (L x B x H) | 3.000 x 1.058 x 2.361 | 3.000 x 1.058 x 3.027 |
| Zellenradleistung 2) | - | 15.744 L/h |
| Gewicht netto o. Verp. | 838 kg | 832 kg |
Daten: Mit Brikettierpresse
| Typ | 300 P-BP 30-40 | 300 P-BP 30-50 | 300 P-BP 50-70 |
|---|---|---|---|
| Artikel-Nummer | 199 538 01 | 192 006 05 | 195 874 05 |
| Leistungswerte | 300mm | 7,5 kW | 6.000 m³/h max. | 5.089 m³/h nenn | ||
| Entsorgung | Integrierte Brikettierpresse | ||
| Pressleistung 2) | bis zu 40 kg/h | bis zu 50 kg/h | bis zu 70 kg/h |
| Brikettdurchmesser | 40 mm | 50 mm | 70 mm |
| Maße (L x B x H) | 3.000x1.332x2.817 | 3.000x1.361x2.817 | 3.000x1.351x2.817 |
| Gewicht | 1.570 kg | 1.570 kg | 1.570 kg |
* GS-HM-03 staubbeaufschlagt
** Lagerware
*** Freifeldmessung nach DIN EN 11201
2) Je nach Material
Verfügbare Optionen
- FilterflächenvergrößerungBis zu 90 m² möglich (auf Anfrage).
- SteuerungserweiterungAutomatischer Anlauf bei Maschineneinschaltung.
- ExpansionsraumerhöhungFür spezielle Anforderungen (auf Anfrage).